咨询热线:400-6123-572
您的位置: 首页 > 衡阳新房 > 雁峰区新房 > 翼鸿湖畔山南

翼鸿湖畔山南

期房 宜居生态
更新时间: 2026-05-15
手机浏览
微信扫码拨号 微信扫码拨号
楼盘主页 楼盘信息 楼盘户型 楼盘相册 楼盘动态 周边配套 价格走势 楼盘点评
全部(9 2室(1) 3室(3) 4室(5)

参考总价:待定

在售
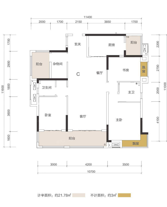
标题: 3栋01户型
户型格局: 4室2厅1厨2卫
建筑面积: 138.32平米
套内面积: 暂无数据
赠送面积: 暂无数据
公摊面积: 暂无数据
户型朝向:
户型类型: 住宅户型
4006123572022

相关户型

免责声明: 本网站宗旨为广大用户免费提供信息服务,数据来源互联网,本站不声明或保证所展示的信息准确性和完整性,仅供参考使用。购房者参考本站信息,进行房屋交易所造成的任何后果与本网站无关。网站所提户型面积均指建筑面积。若网站信息有误,投诉电话:400-6123-572
记录登录状态 《搜新房用户协议》
立即登录

其他登录方式

修改密码
我已阅读并接受 《搜新房用户协议》
立即注册